Temporary Fencing Canada: What You Need to Know
In the vast and diverse landscapes of Canada, there's one element that stands out in various settings, from bustling city construction sites to serene countryside events: the Temporary Fencing . But what exactly is this fencing solution, and why has it become such an essential part of the Canadian scene?

What is Temporary Fencing?
Temporary fencing, also known as portable fence, security fence, or construction fence, serves as a temporary boundary, and it’s designed to be both durable and flexible. Unlike permanent fencing, which is often fixed into the ground, these fences are designed to be quickly erected, easily moved, and taken down as per the demands of the situation.
Core Functions of Temporary Fencing:
- Safety and Security: Whether it’s a construction site hiding potential hazards or an event venue that requires crowd management, temporary fencing acts as a protective barrier, ensuring that people and property remain safe.
- Controlled Access: Temporary fences regulate who enters and leaves a particular area. This is especially critical in exclusive events or restricted areas within a construction site.
- Boundary Definition: In vast open spaces, these fences can help define a particular area, ensuring that space is utilized efficiently without encroachments.
- Versatility: Their design allows them to adapt to various terrains and situations. This is crucial in Canada, where landscapes can shift from flat plains to rugged terrains in short distances.
Significance in the Canadian Landscape:
In Canada, the demands of a diverse topography and climate have necessitated the use of adaptable solutions. This is where the versatility of temporary fencing shines. From the bustling streets of Toronto, where city renovations and high-rise constructions are a constant, to the serene vineyards in British Columbia prepping for a wine tasting event, the utility of these fences is evident.
Moreover, the Canadian commitment to safety, both in urban construction zones and rural events, means there's always a demand for reliable, sturdy, and functional temporary fencing. The frigid winters also bring about their own challenges, requiring fences that can withstand snow loads and cold temperatures.
A Quality Crafted Solution:
In recent years, a rise in the standard of these fences has been observed. For instance, the galvanized coated sidewalk temporary fence stands as a testament to Canadian ingenuity. This variant, often seen lining sidewalks adjacent to construction sites, provides both durability and visibility. The galvanized coating protects against the notorious Canadian winters, ensuring longevity and rust resistance.
When it comes to quality, Canadian manufacturers don’t compromise. Fences are engineered using top-notch materials and leading construction techniques. The aim? Delivering the best value solutions at competitive prices. This commitment ensures that whether you're setting up a dog run in Yukon or managing a public event in Quebec, you know the fence is up to the task.
The Evolution of Temporary Fencing in Canada
1. The Beginnings:
- Long ago, fencing was pretty straightforward in Canada.
- People often used wooden fences for their homes and chain-link fences for more security.
2. The Winds of Change:
- Over the years, a lot has changed in the fencing sector.
- Urban areas in Canada have grown, leading to a need for better security.
- For example, in 1980, Canada had fewer people per square kilometer than today.
- This growth in population means more security risks.
3. Why the Change?
- A big reason for the change is the growth of cities in Canada.
- Other reasons include economic changes, like the drop in oil demand in Alberta in 2014.
- This drop led to more small crimes, which made people see the importance of better fences.
- In places like B.C., crime has gone up, leading to a need for better security fences.
4. Effects of Change:
- With crime on the rise, businesses have started looking for better security options.
- Some people have even stopped using mesh fences, choosing safer options instead.
- Even home fences have changed because of the cost of materials going up.
- Some fences, like wood fences, cost more now, so people are looking for other options.
5. What Should People Know?
- Just putting up a fence doesn't mean your property is safe.
- Fences might keep out honest people, but not everyone.
- Sometimes, people install a fence and find out later it's not secure enough.
- It's good to think about what you really need before you buy a fence.
- This is even more true if the fence is around a place where people could get hurt.
6. Fencing Around the World:
- Canada is catching up to other countries in security fencing.
- In many places, panel fences are the go-to choice for security.
- Other countries are also using high-security mesh fences for places like prisons.
- These fences are hard to mess with and don't need power.
7. Protecting Construction Sites:
- Getting building materials in Canada has become harder.
- With fewer materials available, their cost has gone up.
- This has made construction sites a target for thieves.
- Now, many sites use temporary fences to stay safe.
- If you're renting a fence, get one that's tall and hard to cut.
8. The Future of Fencing:
- Fence companies have seen more thefts from commercial areas in recent years.
- With the rise in theft, it's important to choose the right security fence.
- Chain link fences will still be around, but they're not the only option.
- If you're not sure what to pick, ask someone who knows about fences to help.
Factors Driving the Demand for Temporary Fencing in Canada
Canada, known for its vast landscapes and diverse cities, has witnessed a significant demand for temporary fencing in recent years. This trend isn't just a random occurrence. Specific factors are propelling this rising demand, ensuring that temporary fencing becomes an essential component of various events, projects, and emergency responses across the country. Let's delve into these key driving factors:
1. Urbanization and Infrastructure Growth:
As cities in Canada continue to expand, so does the need for infrastructure projects. From constructing new buildings to developing roads, bridges, and public utilities, urbanization is in full swing. And with each new project comes the need to demarcate boundaries, ensure public safety, and protect valuable equipment. Here, temporary fencing plays a pivotal role. It not only offers a clear boundary for construction zones but also ensures the safety of both workers and the general public. With the boom in infrastructure growth, it's no wonder that the demand for temporary fencing has skyrocketed.
2. Rise in Public Events and Festivals:
Canada is home to a vibrant cultural scene. From the bustling streets of Toronto during the International Film Festival to the melodious vibes of Montreal's Jazz Festival, public events are a significant part of Canadian culture. Organizers of these events prioritize the safety and organization of such gatherings. Temporary fencing serves as an optimal solution, helping manage crowds, streamline movement, and delineate specific zones like VIP areas or stages. As more events pop up across the country, the reliance on temporary fencing becomes even more pronounced.
3. Seasonal Agricultural Demands:
Canada's vast agricultural lands require periodic adjustments based on seasonal demands. Whether it's setting up for seasonal crops, managing livestock, or setting up areas for farmers' markets, temporary fencing offers flexibility and efficiency. Especially during harvest seasons, when there's a need to protect crops from wildlife or create temporary storage areas, fencing becomes indispensable. It offers a quick, reliable, and cost-effective solution for Canada's vast agricultural sector.
4. Natural Calamities and Emergency Situations:
Unfortunately, Canada isn't immune to the wrath of nature. Whether it's forest fires in British Columbia or flooding in Quebec, emergencies can arise without warning. During such times, managing affected areas and ensuring the safety of residents becomes paramount. Temporary fencing becomes a rapid response tool in these situations. It helps emergency personnel create safe zones, manage evacuations, and control access to affected areas. The adaptability and quick deployment of temporary fencing make it a crucial asset during such trying times.
Material Innovations in Temporary Fencing: Suitability for Canadian Climates
Canada’s dynamic weather conditions demand robust solutions for temporary fencing. The country's vast landscapes, ranging from scorching summers to snowy winters, require fencing solutions that can withstand it all. This brings us to the innovations in materials and their suitability for Canadian climates.
Standard Temporary Fence with Galvanized Coating
CanadaMade understands the demands of the Canadian climate. Hence, our temporary fencing solutions are constructed with top-notch materials and cutting-edge techniques to ensure maximum durability and value for money. Commonly referred to as portable, security, or construction fences, our solutions are designed for swift setup and easy relocation. They're perfect for construction sites, public events, dog runs, and any situation requiring crowd control.
Specifications:
- Size Options: Our standard panels are available in dimensions of 6'H x 9.5'L or 6'H x 10'L.
- Finish: Customers can choose between powder-coated or hot-dipped galvanized finishes. Custom sizes, colors, and finishes can be provided upon request.
- Fence Specifications: The detailed specifications of our powder-coated temporary fence include various dimensions, wire diameters, mesh hole openings, frame sizes, fence feet options, and accessory details. What sets our product apart is its detailed and thorough construction.
- Quality Assured: With all welding slag meticulously cleared before coating and industry-renowned AkzoNobel powder used for coating, we ensure that the fence retains its quality for over a decade.
![]() 1. All tubes top clip
|
![]() 2. Solid round bar with flat steel
|
![]() 3. Lengthened clip
|
![]() 1. All tubes top clip
|
![]() 2. Solid round bar with flat steel
|
![]() 3. Lengthened clip
|
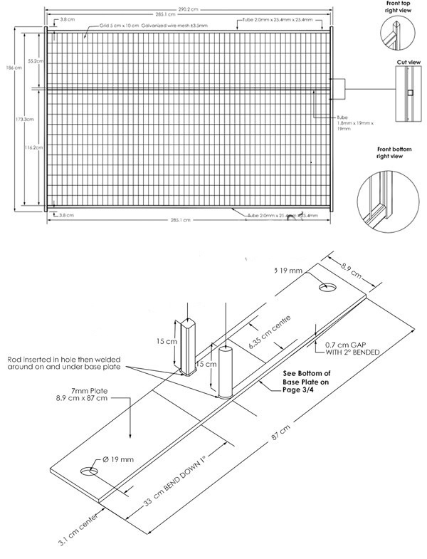
Understanding the Temporary Fence Base: Engineering and Quality
In the realm of temporary fencing, the base plays a pivotal role in ensuring stability, security, and durability. It's not just about the mesh or the panels; the foundation they stand upon must be robust and resilient, especially in challenging environments like those often found in Canada. The base anchors the fencing, preventing it from toppling over due to external forces, be it strong winds, physical pressure, or other stressors.
Popular Sizes and Dimensions:
CanadaMade's temporary fencing solutions incorporate bases that come in popular sizes like 750x100x7mm and 863x89x8mm. These dimensions have been chosen meticulously, ensuring that they offer optimum balance and stability to the fence panels. They are designed to distribute weight evenly and provide a broad footprint, ensuring that the fence remains upright and sturdy, even on uneven terrains.
Material Excellence:
The choice of raw material is paramount in determining the longevity and efficacy of the fence base. CanadaMade utilizes low carbon steel for crafting these bases. Why low carbon steel? This variant of steel is known for its superb ductility, malleability, and welding properties. Such characteristics make it an ideal choice for applications where strength is a requirement, but without the brittleness that often comes with higher carbon counterparts.
![]() 1. Upright square/round tubes
|
![]() 2. upright square/round rod
|
![]() 3. Strengthened type: base with our prongs
|
![]() 4. Fence with U hook
|
Top Clip:
Purpose: It's used to join two fence panels at the top.
Design: The horizontal part of the clip can be a flat plate, square tube, or flat steel. The clip's two supporting legs can be designed using either bars or tubes. This design ensures a strong and secure connection between panels.
![]() 1. All tubes top clip
|
![]() 2. Solid round bar with flat steel
|
![]() 3. Lengthened clip
|
Surface Treatment:
To further enhance the resilience of the fence base, especially against the elements, CanadaMade employs an epoxy polyester powder coating. This coating serves multiple purposes:
-
Protection Against Corrosion: The coating acts as a barrier, preventing moisture from coming into direct contact with the steel, thus mitigating the risk of rust and corrosion.
-
Aesthetic Appeal: While the primary function of the fence base is structural integrity, the aesthetic cannot be ignored. The epoxy polyester powder coating offers a sleek, polished finish, adding to the visual appeal of the entire fencing system.
-
Durability: This specific type of coating is renowned for its ability to resist chipping, scratching, and other forms of wear and tear. This ensures that the base remains in prime condition for a more extended period.
-
Environmental Resistance: Given Canada's varied climatic conditions, from harsh winters to rainy seasons, the coating provides an added layer of protection against the elements.
Detailed Components:
-
Fence Panel: Our fence panels are constructed using pre-hot dipped galvanized steel. They're powder-coated instead of PVC coated, ensuring better durability. The joints are fully welded on all four sides, and the mesh extends right to the top for enhanced security.
-
Temporary Fence Base: Made from low carbon steel with epoxy polyester powder coating, the base adds stability to the fence.
-
Top Clip: A unique feature that helps connect two panels together, ensuring an extended and secure fencing perimeter.
-
Color Varieties: Our fence solutions are available in a spectrum of colors, including red, yellow, orange, blue, green, black, grey, white, etc., giving clients a wide range of choices.
Our Commitment to Service:
At CanadaMade, we prioritize customer satisfaction. Not only do we offer exclusive designs and measurement photos before shipment, but our service extends beyond the sale. We're committed to on-time deliveries, product testing before shipment, after-sales support, and customization in fence shapes and sizes.
Packaging & Delivery:
Our fencing solutions are packaged meticulously on steel pallets, wrapped with plastic film and carton board to ensure zero scratches. The entire pallet is fastened securely with nylon belts.
Applications of Temporary Fencing:
Temporary fencing finds its applications in various areas, such as construction sites for security, crowd control at major events, containment at disaster relief sites, and more. It’s an affordable and flexible solution that's becoming indispensable across Canada.
Safety First: The Protective Role of Temporary Fencing in Canada
In the sprawling landscapes of Canada, from bustling city centers to serene rural settings, safety remains a top priority. One of the vital tools that have been instrumental in ensuring this safety is temporary fencing. As the name suggests, this isn't a permanent fixture but is used strategically and temporarily to protect, control, and manage various scenarios. Let's delve into the significant roles temporary fencing plays in ensuring safety across Canada.
1. Safeguarding Construction and Renovation Sites
Construction and renovation sites are hubs of activity, with workers, heavy machinery, and building materials all in constant motion. Without proper demarcation and protective measures, they can pose risks to both workers and the general public. Temporary fencing acts as a barrier, keeping unauthorized personnel out and ensuring the safety of workers inside. Additionally, they prevent accidental falls, theft of construction materials, or machinery and mitigate any potential liabilities for construction companies.
2. Ensuring Crowd Safety During Public Events
Canada, with its rich tapestry of cultures and festivals, often sees public events drawing large crowds. From music festivals in Toronto to cultural parades in Vancouver, these events need crowd control to prevent stampedes, unauthorized access to stages or VIP areas, and other potential mishaps. Temporary fencing provides a structured pathway for attendees, guiding them efficiently and ensuring everyone's safety. They are also pivotal in demarcating emergency exits, ensuring that in case of any emergencies, people can exit safely and swiftly.
3. Reducing Wildlife and Human Conflicts in Rural Settings
Canada's vast landscapes mean that urban areas often brush up against wild habitats. In rural settings, especially during specific seasons, wildlife can wander into human-populated areas, leading to potential conflicts. Temporary fencing serves as a non-permanent solution to deter wildlife from entering these zones, especially during migration or mating seasons. This not only protects the animals but also reduces potential hazards for humans.
4. Mitigating Hazards During Emergencies
In the face of natural disasters or emergencies, swift action is required to protect citizens. Floods, fires, or other calamities can render certain areas unsafe. Temporary fencing is an immediate solution to cordon off these hazardous zones, directing the public away from potential danger. For instance, after a storm, fencing can prevent access to areas with fallen power lines or structural damages, ensuring no one inadvertently wanders into a hazardous situation.
Procurement and Set-Up: Your Guide to Starting with Temporary Fencing
1. Where to Source Your Fencing
a. China Factory: Many businesses turn to Chinese factories for their temporary fencing needs. This is often because:
- Cost-effective: Generally, products from China can be more affordable due to lower manufacturing costs.
- Bulk orders: If you need a large quantity, Chinese factories can usually handle big orders.
- Variety: There's a wide range of designs and materials available.
However, keep in mind:
- Shipping time: Getting your fencing from China might take longer due to shipping.
- Quality check: Always ensure the quality meets your requirements.
b. National Suppliers: Buying from suppliers within your country has its perks:
- Quick delivery: You often get faster delivery compared to international shipping.
- Easy communication: Dealing with local suppliers can mean fewer language barriers and better customer service.
- Quality assurance: Local suppliers might offer better or more consistent quality.
2. Tips for a Solid Fence Set-Up
- Check the ground: Before you set up, make sure the ground is even. If it's not, you might need to flatten it a bit to ensure stability.
- Use strong bases: These are the parts that hold your fence upright. Make sure they're sturdy and heavy enough so the fence doesn't tip over.
- Interlink panels: When setting up, make sure each panel is linked to the next. This gives the whole structure more strength.
- Monitor weather: If you expect strong winds or storms, make sure your fence is extra secure. Maybe use additional supports or weights.
- Regular checks: Once your fence is up, check it regularly. Make sure it's still stable, and no parts are loose or damaged.
Procurement and Set-Up: Getting Started with Temporary Fencing
Temporary fencing is an integral part of various projects, ranging from construction sites, events, or even for residential purposes. But how do you ensure that you're procuring the right type of temporary fence and setting it up properly? Here's a guide to help you get started:
1. Where to Source: Local Vendors vs. National Suppliers
-
Local Vendors:
-
Pros:
- Quick Delivery: Due to proximity, local vendors can often deliver faster than national suppliers.
- Local Knowledge: They may be more aware of local regulations and requirements.
- Personalized Service: Local vendors can offer more personalized customer service.
-
Cons:
- Limited Inventory: They may not have as extensive a range of products as national suppliers.
- Potentially Higher Prices: Without the economies of scale that national suppliers have, prices might be a bit steeper.
-
-
National Suppliers:
- Pros:
- Extensive Inventory: A wide variety of products to fit specific needs.
- Competitive Pricing: Due to bulk buying and economies of scale.
- Standardized Services: Uniform services and products across different locations.
- Cons:
- Impersonal Service: You might not get the same personalized touch as with a local vendor.
- Delivery Delays: Depending on your location, there might be longer lead times.
- Pros:
2. DIY Installation vs. Professional Set-Up
-
DIY Installation:
-
Pros:
- Cost-Effective: Save money on professional installation fees.
- Flexibility: Set it up according to your own schedule.
-
Cons:
- Time-Consuming: Without expertise, the set-up might take longer.
- Potential Mistakes: Risk of improperly installed fencing which might not serve its purpose effectively.
-
-
Professional Set-Up:
-
Pros:
- Expertise: Professionals have the know-how to set up the fencing securely.
- Time-Efficient: Faster installation due to experience.
- Guaranteed Quality: Most professional services offer guarantees or warranties.
-
Cons:
- Costly: Professional services come at a price.
-
3. Tips for Ensuring Stability and Sturdiness:
-
Ground Check: Before installation, ensure the ground is relatively even. For uneven terrains, special provisions or fence types might be required.
-
Proper Anchoring: Use weighted bases, concrete blocks, or stakes, depending on the type of temporary fence and the ground it's being installed on.
-
Regular Checks: Once installed, check the fence's sturdiness periodically, especially after extreme weather conditions.
-
Overlap Panels: When setting up, make sure the panels overlap or interlock to give additional stability.
-
Wind Considerations: If the fencing is in a particularly windy area, consider using wind braces or seeking fences designed to withstand wind loads.
Environmental Considerations
1. Eco-friendly Fencing Materials:
- Many manufacturers are now offering fencing materials made from recycled or sustainable sources. These materials not only reduce waste but also require less energy for production.
- Bamboo, for instance, is a sustainable and strong material that's becoming popular in temporary fencing.
- Another option is composite fencing made from a blend of wood and plastic, combining durability with a reduced carbon footprint.
2. Recycling and Disposal of Temporary Fences:
- Always consider companies that have a take-back program where they collect used temporary fencing for recycling.
- Before disposal, check if the fence can be repurposed or reused in other applications.
- Many fencing materials, like metals and certain plastics, can be recycled, reducing the need for new raw materials.
3. Minimizing Environmental Footprint:
- Opt for local suppliers to reduce the carbon footprint associated with transporting the fences.
- Regular maintenance ensures longer fence life, reducing the frequency of replacements and the resulting environmental impact.
- If using wooden fences, ensure they are sourced from sustainably managed forests.
The Road Ahead: Future Trends in Temporary Fencing in Canada
1. Technological Advancements on the Horizon:
- Smart Fences: The integration of sensors and cameras to provide real-time monitoring and enhanced security.
- Durable Materials: Research is ongoing into materials that are both eco-friendly and have longer lifespans, reducing the need for replacements.
- Mobile Apps: Apps that allow users to monitor, control, and get alerts about their temporary fencing.
2. Changing Consumer Demands and Preferences:
- Eco-conscious Choices: With increasing awareness about the environment, more consumers are demanding green and sustainable fencing solutions.
- Customization: There's a growing demand for customizable temporary fencing solutions that cater to specific event or site needs.
- Aesthetics: Beyond functionality, there's a rising trend of consumers wanting temporary fences that are also visually appealing.
In summary, as environmental concerns become central to consumer choices, the temporary fencing industry in Canada is evolving. With advancements in technology and changing consumer preferences, the future holds a blend of eco-friendly solutions and innovative features.
Latest News
Contact Us
Name: Frank
Tel: 0086-17121115666
Fax: 0086-318-7883678
Mobile: 0086-17121115666
E-mail: canada@construction-fence.com
QQ: 9651140@qq.com
WeChat: wirefence
Whatsapp: 8615690482714














WhatsApp
Mail inquiry
QQ online